






Projet en cours: châssis de toit et réalisation des planchers
" Aménagement d'un comble "
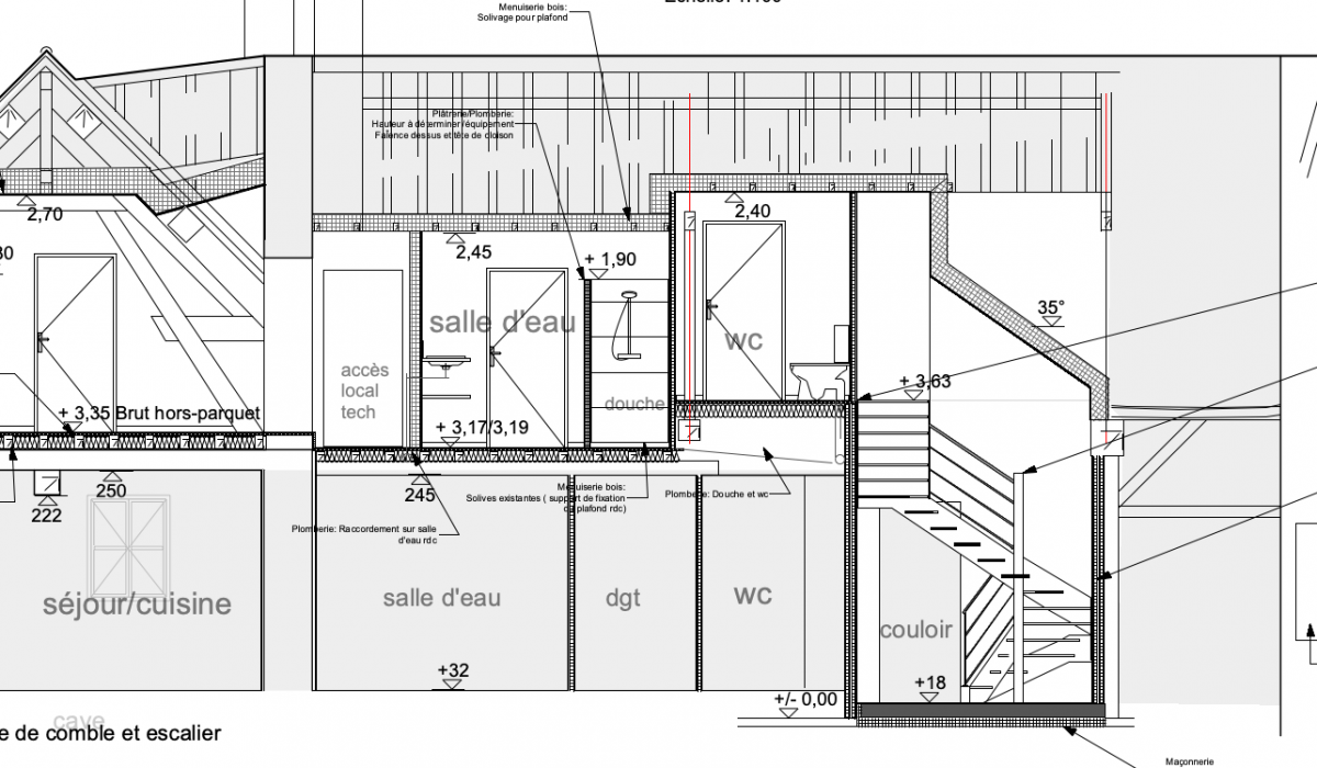
Dans ce projet, il est prévu l’aménagement d’un comble pour la création de deux chambres avec salle d’eau. Afin de ne pas impacter le rez-de-chaussée rénové récemment, l’escalier futur sera installé dans une partie de la grange en lien avec un couloir déjà existant.
" Travaux étapes par étapes "
1 – Travaux de maçonnerie et démolition: agrandissement de passage, modification des appuis de fenêtres, dallage pour assise du futur escalier.
2 – Préparations des planchers, ici réalisés en dérivé de bois et réseaux (électricité, plomberie, chauffage,…) Anticiper la commande des fenêtres, délais entre 8 et 10 semaines !
3 – Réalisation des châssis de toit
4 – Dès la pose des fenêtres, intervention du plaquiste: doublage, plafonds et isolation. En parallèle suivi de l’électricien et du plombier chauffagiste.
5 – Locaux prêts pour les finitions: carrelage, peinture, parquet.
" Délais et coûts"
Les délais des travaux sont estimés pour une durée de 5 mois. La durée étant déterminée par le délai de commandes des menuiseries extérieures entre 8 et 10 semaines.
Le coût des travaux est d’environ 95 000€ HT pour environ 60,00m2 habitable, sachant que le rez-de-chaussée de cette maison avait été récemment rénové
