Rénovation d'une maison ancienne








- PROJET
- AUJOURD'HUI
- PROJET EN COURS
- .

PROJET: entrée
Espace d’entrée vitré délimitant la cuisine

ACTUELLEMENT
Une ancienne cheminée dont le conduit à déjà été démoli obstrue la luminosité de la pièce

PROJET: cuisine
Cuisine au centre de la maison profitant de la lumière sur toute la journée

ACTUELLEMENT
La cuisine actuelle ouvrant sur une salle d’eau

PROJET: salle d'eau
Salle d’eau avec sanitaire indépendant

PROJET: salle d'eau
Grande douche ouverte

ACTUELLEMENT
Salle de bains actuelle
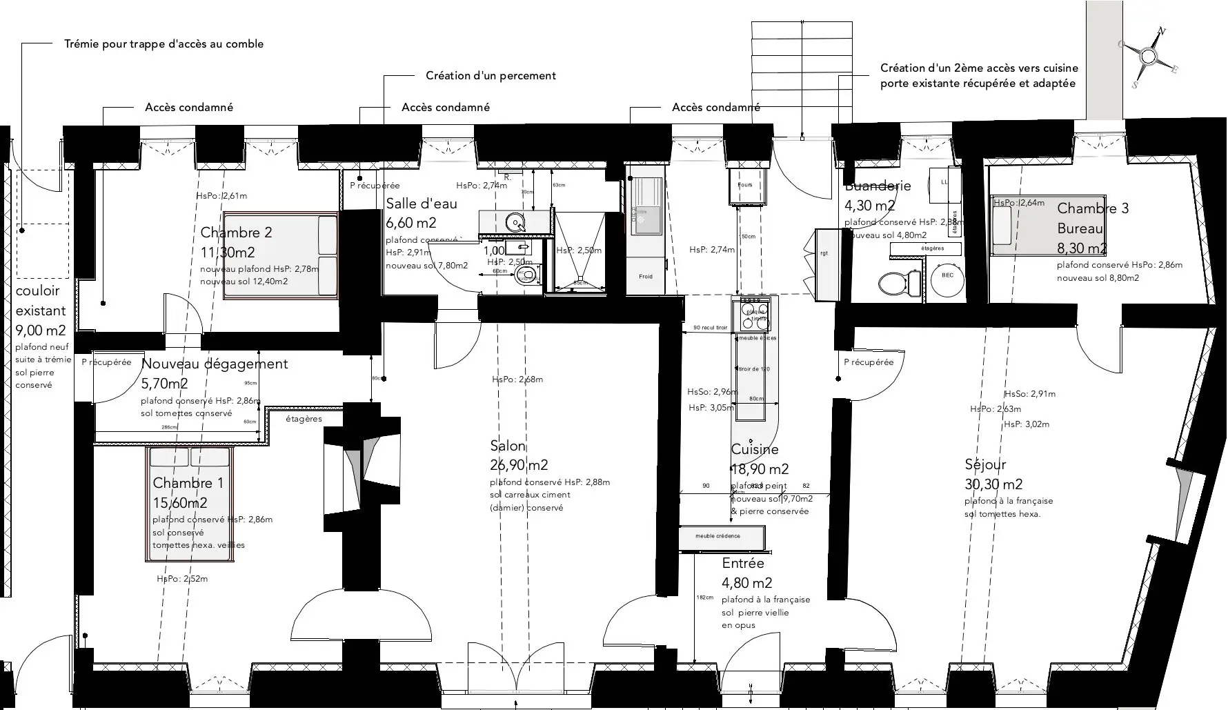
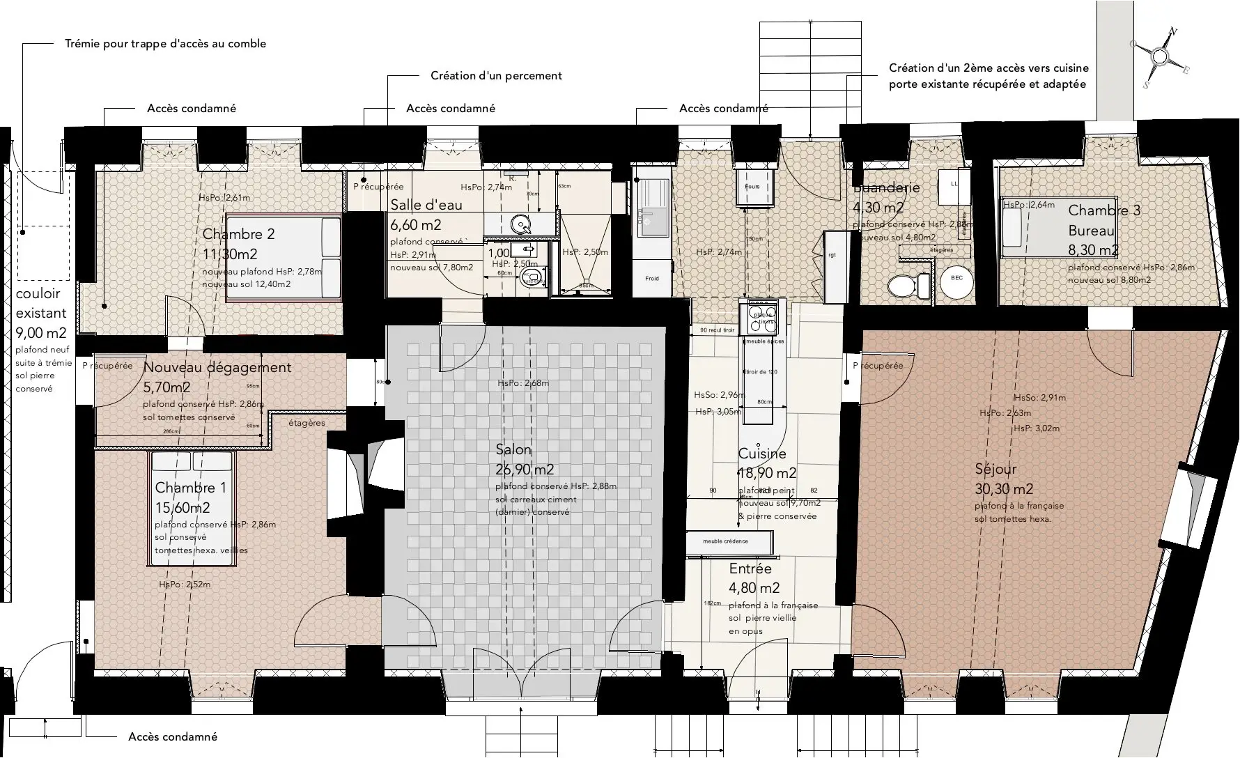
Le programme:
- Rénovation une maison ancienne
- Agrandir la cuisine
- Améliorer la luminosité naturelle
- Eviter des chambres traversantes
La réponse architecturale:
- Démolition de la cheminée obsolète afin de d’optimiser la lumière et la surface de la pièce
- Modifier la distribution des pièces
- Moderniser la salle d’eau
- Créer un couloir de distribution vers la zone nuit
L'identité du lieu
Avant tout, cette maison située dans un village viticole des faubourgs de Chablis, hérite d’un véritable charme. Lors des travaux de rénovation, nous préserverons le maximum d’éléments notables (anciennes portes, sols tomettes et pierre,…) afin de garder l’identité du lieu.
Les besoins
Après visite, il s’avère que la distribution en « enfilade » des pièces ne correspond pas aux besoins des usagers. A noter, que certaines pièces sont très petites proportionnellement aux pièces de vie, en référence à des pièces domestiques de belles demeures où l’on privilégiait les pièces nobles de réception.
Afin de répondre aux attentes, la cuisine sera agrandie et la cheminée obsolète sera démolie pour apporter une lumière traversante. Par ailleurs, les chambres bénéficieront d’accès indépendant via un couloir distribution.
De plus, les travaux intégrerons une mise aux normes de l’installation électrique avec isolation et remplacement des menuiseries extérieures en bois.
Avancement du projet
Le projet est en cours d’élaboration sur une base financière d’environ 180 000 € HT de travaux.
