RENOVATION D'UNE ANCIENNE MAISON BOURGUIGNONNE








- PROJET
- AUJOURD'HUI
- PROJET EN COURS
- .

PROJET: entrée
Espace d’entrée vitré délimitant la cuisine

ACTUELLEMENT
Une ancienne cheminée dont le conduit à déjà été démoli obstrue la luminosité de la pièce

PROJET: cuisine
Cuisine au centre de la maison profitant de la lumière sur toute la journée

ACTUELLEMENT
La cuisine actuelle ouvrant sur une salle d’eau

PROJET: salle d'eau
Salle d’eau avec sanitaire indépendant

PROJET: salle d'eau
Grande douche ouverte

ACTUELLEMENT
Salle de bains actuelle
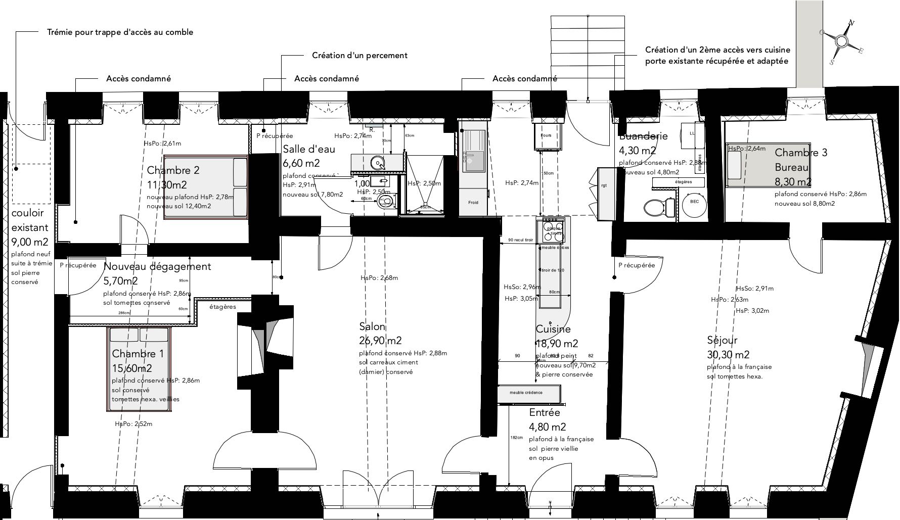
Le programme:
- rénover une maison ancienne
- agrandir la cuisine
- améliorer la luminosité naturelle
- éviter des chambres traversantes
La réponse architecturale:
- démolition de la cheminée obsolète afin de créer un pièce traversante pour la cuisine et la zone d’entrée
- modifier la distribution des pièces
- moderniser le salle d’eau
- créer un couloir de distribution de la zone nuit
