AGRANDIR SA MAISON PAR L'ACQUISITION D'UNE MAISON MITOYENNE







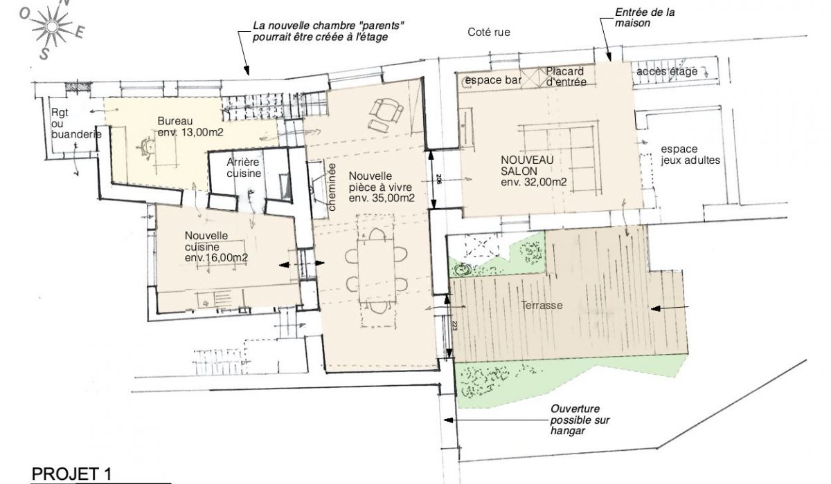
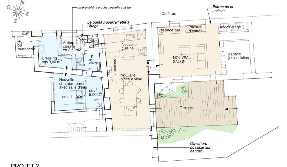
Le programme: Créer une grande maison avec 2 petites
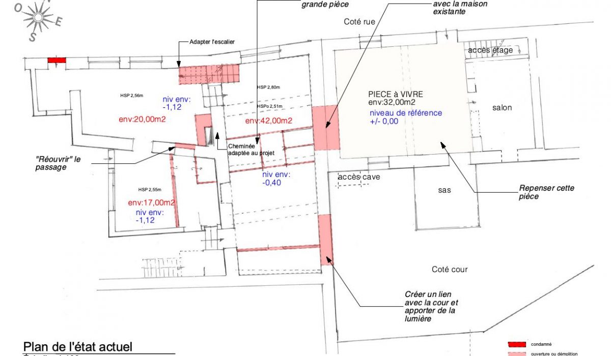
- aménager la maison mitoyenne pour qu’elle s’intègre à la maison existante
- une grande pièce à vivre en liaison avec l’existant
- une zone nuit parents avec salle d’eau et dressing
- un bureau
La réponse architecturale:
- Abattre les cloisons des anciennes distributions pour créer une grande pièce à vivre avec une cheminée et une liaison avec la cour et la maison existante
- Réimplanter la cuisine en lien avec la pièce à vivre pour libérer un bel espace salon
- Transformer l’ancienne cuisine en suite parentale
- Aménager les locaux d’usage sur le coté rue

 
		 
							